1 namas - 1 etapas

J. Naujalio g 20e

Statybų pabaiga 2026 IV ketvirtis

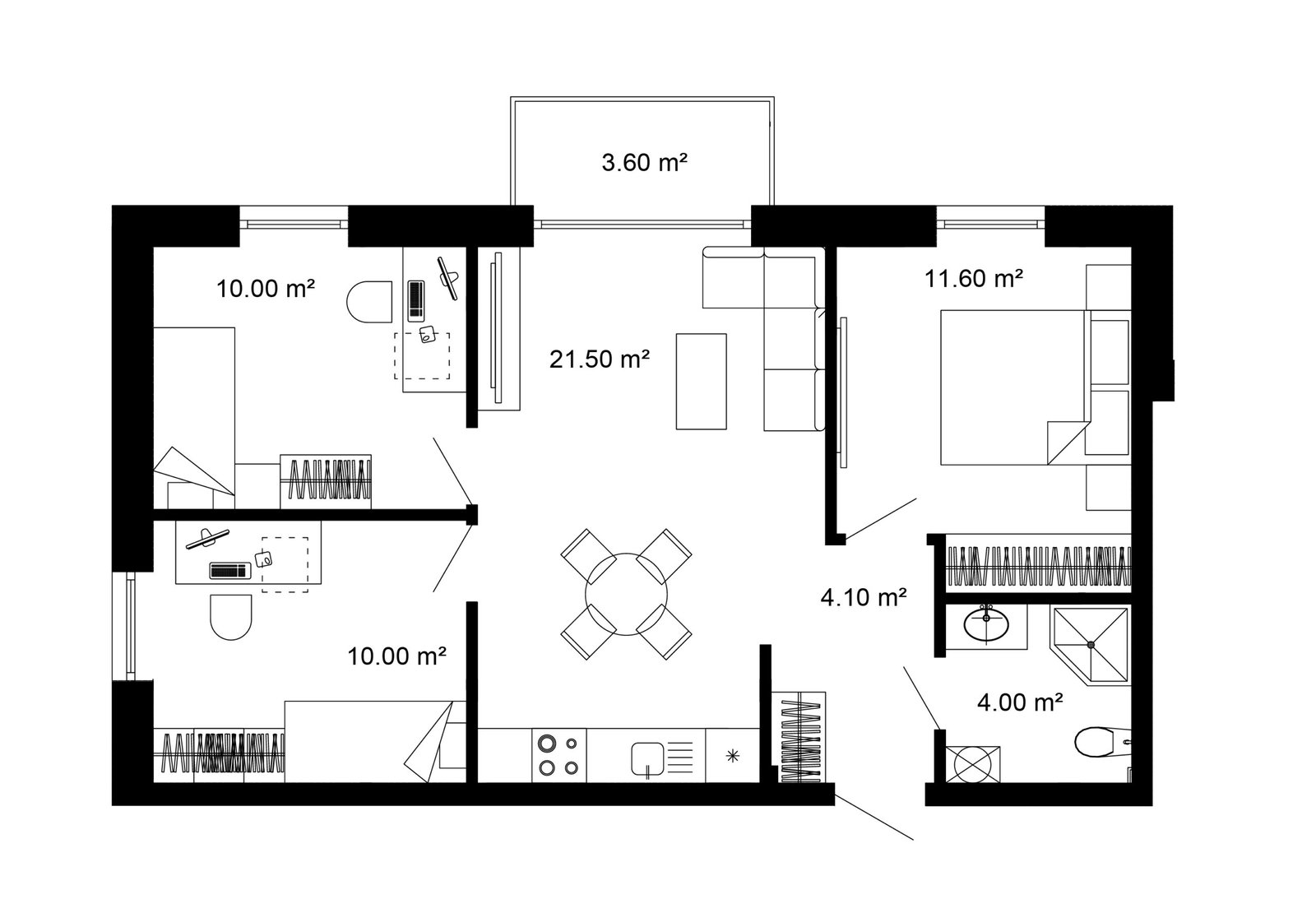
BUTAS

18

PLOTAS:

57,20 kv.m.

AUKŠTAS:

4

KAMBARIAI:

4

BALKONAS:

Taip

KRYPTIS

ŠR

APDAILA:

Dalinė

KAINA:

137 000 eur

STATUSAS:

Laisvas

* Automobilio stovėjimo vietą ir sandėliuką galima įsigyti už papildomą kainą