1 namas - 1 etapas

J. Naujalio g 20e

Statybų pabaiga 2026 IV ketvirtis

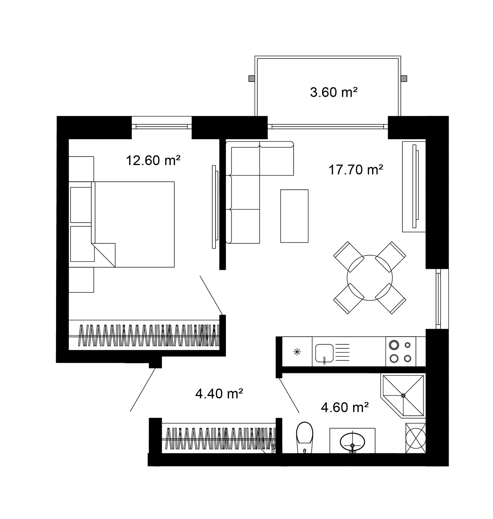
BUTAS

10

PLOTAS:

39,30 kv.m.

AUKŠTAS:

3

KAMBARIAI:

2

BALKONAS:

Taip

KRYPTIS

ŠR

APDAILA:

Dalinė

KAINA:

99 900 eur

STATUSAS:

Laisvas

* Automobilio stovėjimo vietą ir sandėliuką galima įsigyti už papildomą kainą